Spivak Architects


Status
Completed
Client
Orsid Realty

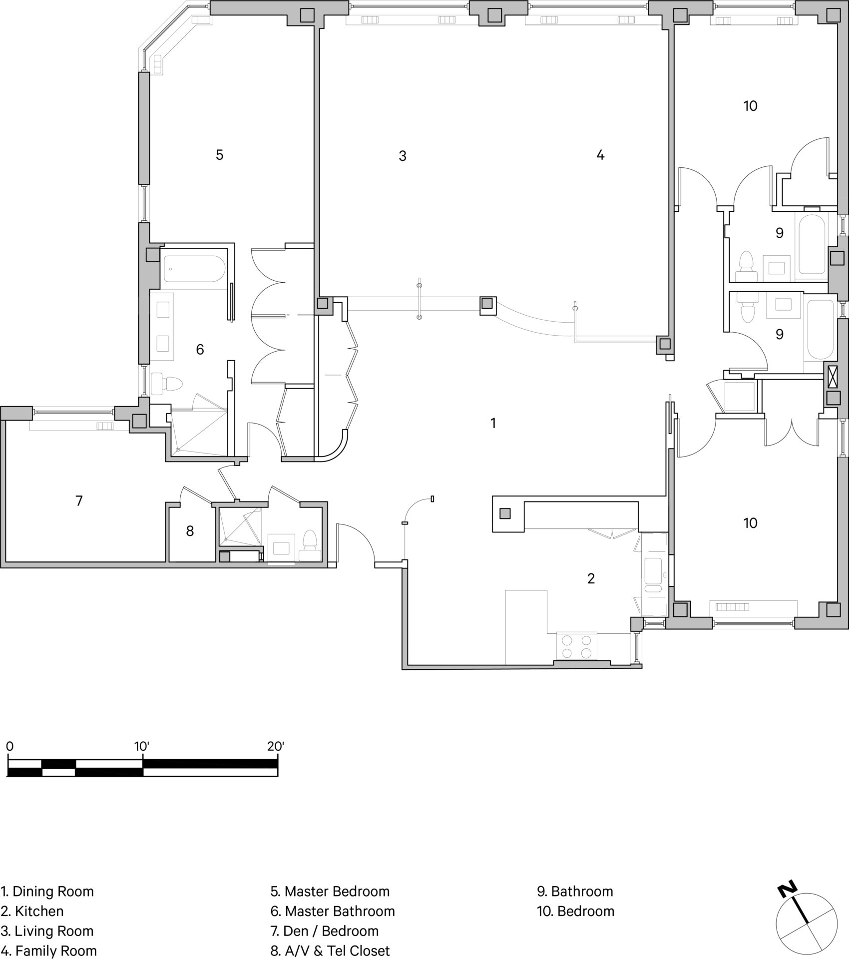
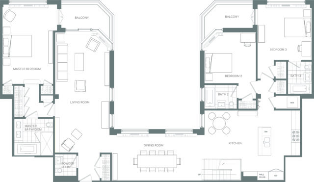
As part of a condominium conversion, Spivak Architects was retained to renovate this 11 story building. The work included complete gut renovations of existing apartments into a variety of simplex and duplex apartment combinations ranging from 1,000 to 4,000 square feet. Our goal was to create expanded open kitchens, up to date bathrooms, and crisp interior finishes which complimented the Art Deco style of the building. These improvements, along with the upgraded services created a significant improvement in quality of living for tenants and owners of this building. In addition, the cellar and ground floor were extended into the yard to create a 3,000 square foot double-height sky lit medical office, as well as a new roof and roof terrace for the second floor condo owner’s use and enjoyment.