Spivak Architects


Type
Status
Completed
Location
New York Metropolitan Area
Client
Spear Physical Therapy

Howard Spivak and Dan Rootenberg, Spear CEO, were brought together as patient and therapist in 2004. Their relationship has evolved into a friendship as well as a successful partnership. Fourteen years on, the architect/client design collaboration has resulted in sixteen cutting-edge physical therapy clinics across NYC.

Design treatment starting with the patient experience

Howard and Dan and their teams have grown together. Starting with their personal and patient therapist relationship, they then included their teams into the process helping to evolve the practice. Dan and Howard share a common team-oriented approach to their practices, the treatment of patients and design studio. This perspective is reflected in the design of the spaces, reinforcing Spear’s approach to patient treatment. As their shared vision has evolved, the spaces and the approach to care evolved along with it. Their teams are continually reflecting, evaluating the design and approach to treatment and exploring new approaches.

Holistic Design

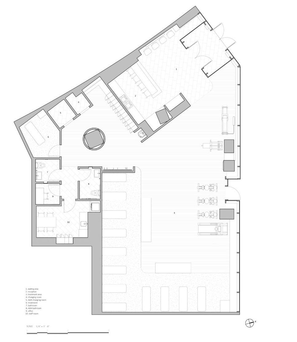
Through the use of natural materials, thoughtful integration of inherent elements, and a commitment to intimate treatment areas and cool, open workout spaces, we are designing holistic clinics where design reinforces patient care and gives equal weight to the practical and the ethereal. Different zones are demarcated by varying ceiling heights and floor finishes and textures, making them easily identifiable for both patient and therapist, while retaining the openness of the space.

Private vs. Public

The design starts with the patient and therapist relationship, which ranges from the intimate to the public. The design reinforces these different relationships. The personal treatment area as an intimate feel with the lower wood baffle ceiling with warmer colors and light, softer materials. The gym and exercise area encourages a collective patient experience and energy with its open higher ceilings and slightly cooler light. The plans are designed to allow a therapist to maintain a line of sight to monitor the patients in both the private and public areas.

A continuous ‘ribbon’ of felt pulls you from the entrance through to the back of the space to the patient treatment area. This element begins as a wall and transitions to a floating soffit, dividing the public and private spaces. The custom baffle ceiling design allowed us to retain the feeling of expansiveness in the space while creating a more intimate area for the patients to receive their treatment

Beyond Architecture

During our mutual evolution, we have developed a unique working relationship with the client that goes beyond architectural services. The result is a revolutionary partnership and a forward-thinking approach to patient care through design that has accelerated business growth, increased profitability and facilitates powerful healing environments.